LUP

Mehrfamilienhaus Sanierung

Ein neues Kleid

Vom Mauerblümchen zur klassischen Dame

Das nach einem Kriegsschaden wiederaufgebaute Mehrfamilienhaus wirkte in seiner Gründerzeit-Nachbarschaft wie ein Fremdkörper. Nach der Sanierung gliedert sich die Fassade in ihren Proportionen neu und stellt mit seinem Rillenputz Bezüge zur Nachbarschaft her.
Elemente aus der Gründerzeit wurden im Treppenhaus sorgfältig aufgearbeitet und nach einem aus dem vorhandenen Fliesenmosaik abgeleiteten Farbkonzept gestaltet.
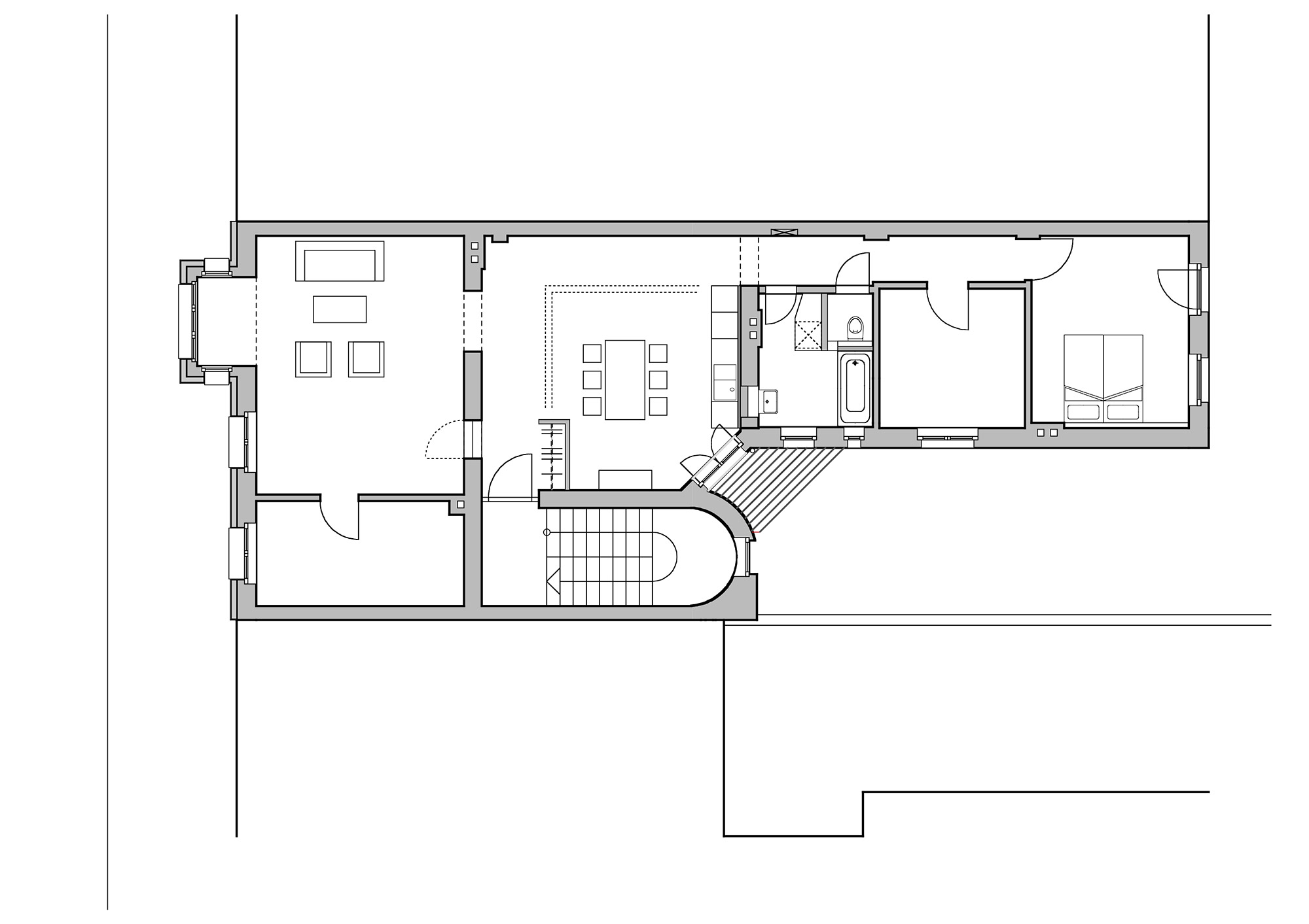
Durch geschickt gesetzte Durchbrüche entstanden großzügige und flexibel nutzbare Grundrisse, die den heutigen Wohnvorstellungen entsprechen.

Projekt: Sanierung Mehrfamilienhaus

Ort: Köln, Lupusstraße 32

Auftraggeber: Privat

Leistungen: Objektplanung LP 1-9 HOAI

Baubeginn: 2006

Fertigstellung: 2006

Projekt Team: Jan Hertel, Markus Kilian, Diana Reichle

expand_more

clear