GLA

Heisenberg Gymnasium

Stadtfenster eröffnen Weitblick

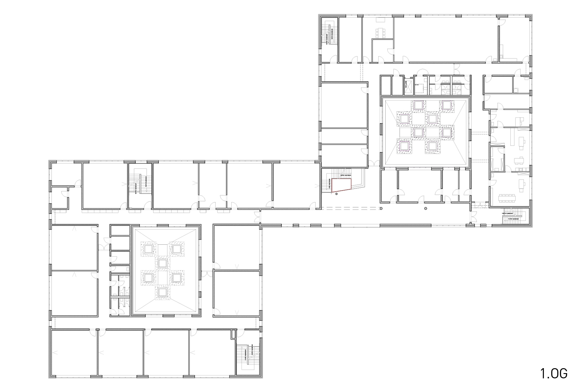
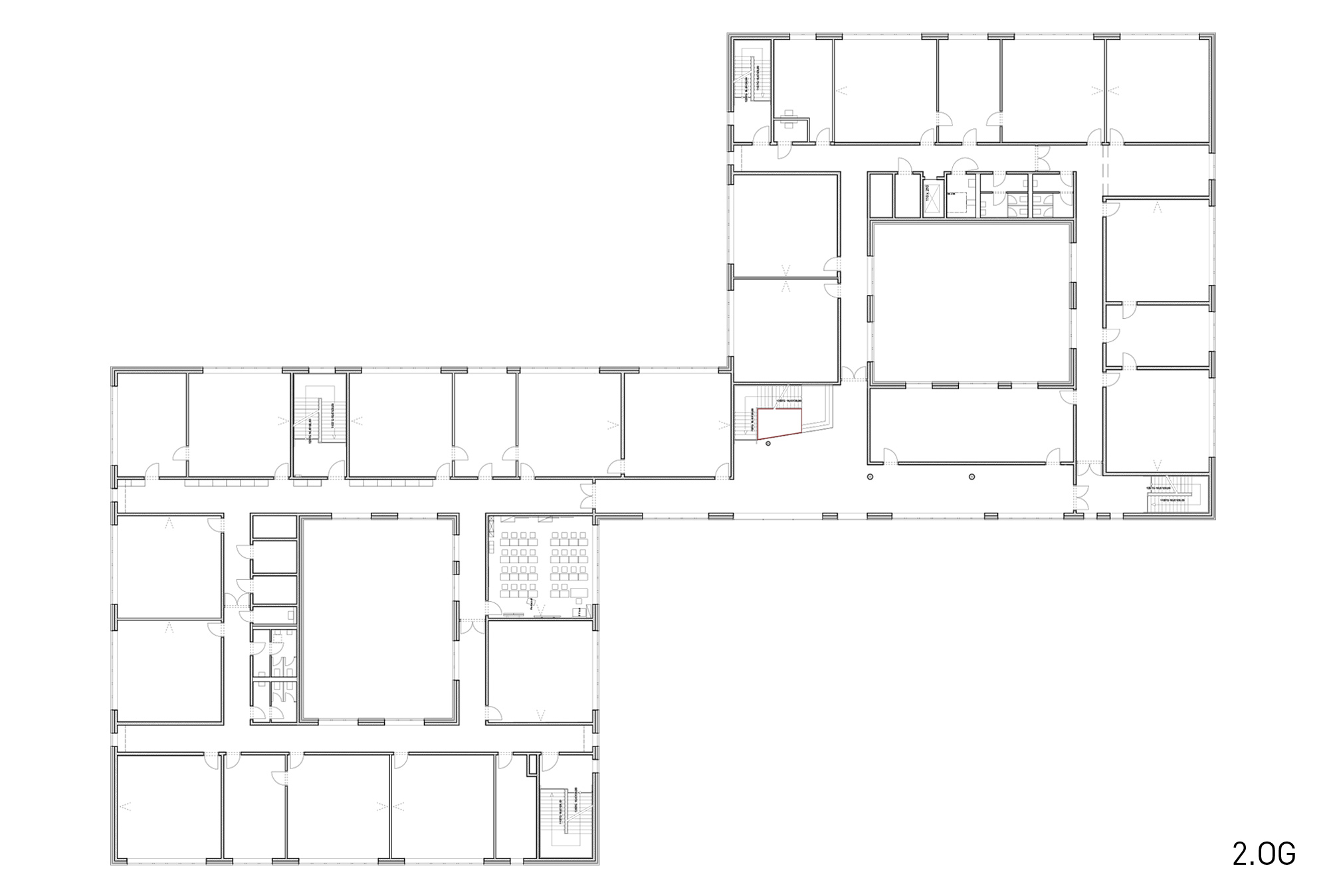
Der Neubau des Gebäudes gliedert sich in zwei kompakte Gebäudeteile, die durch ein großzügiges Eingangsfoyer mit zentraler, repräsentativen Treppe miteinander verbunden sind. Sie weitet sich nach unten in breite Blockstufen auf und bietet dadurch attraktive Sitz- und Aufenthaltsmöglichkeiten. Die vorgelagerten großen 'Stadtfenster' mit tiefer Laibung und niedriger Brüstung eröffnen einen eindrucksvollen Weitblick zur Stadt hin und laden zum Verweilen ein.

Der Gedanke der 'Schule als Lebensraum' wird durch qualitätsvolle Aufenthaltsflächen sowohl in den Obergeschossen, als auch im Bereich der Pausenhalle mit 'Agora' im Erdgeschoss unterstützt.

Projekt: Neubau Heisenberg Gymnasium

Ort: Gladbeck, Konrad-Adenauer-Allee 1

Auftraggeber: HOCHTIEF Bau und Betrieb GmbH

Leistungen: Objektplanung LP 2-5 HOAI

ÖPP: 2018

Baubeginn: 2019

Fertigstellung: 2022

BGF: 10.300 qm

Projekt Team: Tim Denninger, Jan Hertel, Markus Kilian, Diana Reichle, Michael Scholz mit Sebastian Arzet, Leila Chu, Markus Wiesneth, Richard Ziegler

Fotos: Constantin Meyer

expand_more

clear